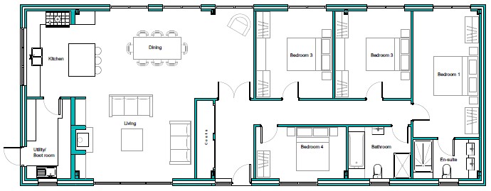
Full Planning granted for Change of Use of agricultural building to dwelling in South Yorkshire.
Prism Ag successful in gaining Full Planning permission for the Change of Use of a former agricultural building within the Green Belt in South Yorkshire, whilst the building was originally erected as part of an agricultural trade or business, its last use in recent years was in a non-agricultural use, Prism Ag put forward a proposal to the Council which included proposing to remove a much taller front section of a neighbouring building if the permission was granted for this application, by doing so, this reduced the bulk and massing of other buildings on the site in a non-residential use and the LPA was satisfied this strategy met their requirements.

Have you got an active or redundant agricultural building that may be eligible for Conversion using Full Planning, Class Q (residential use) or Class R (flexible business use) applications? Get in touch with Prism Agriculture Ltd on 0800 135 7450 or 'Make an Enquiry' on our contact page.
